Armures
Maison Familiale
260 m2
2022
ARM
URES
URES
“We would like a house which feels like a South holiday colorful »
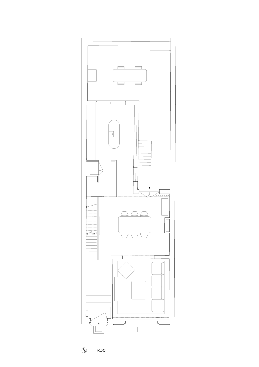
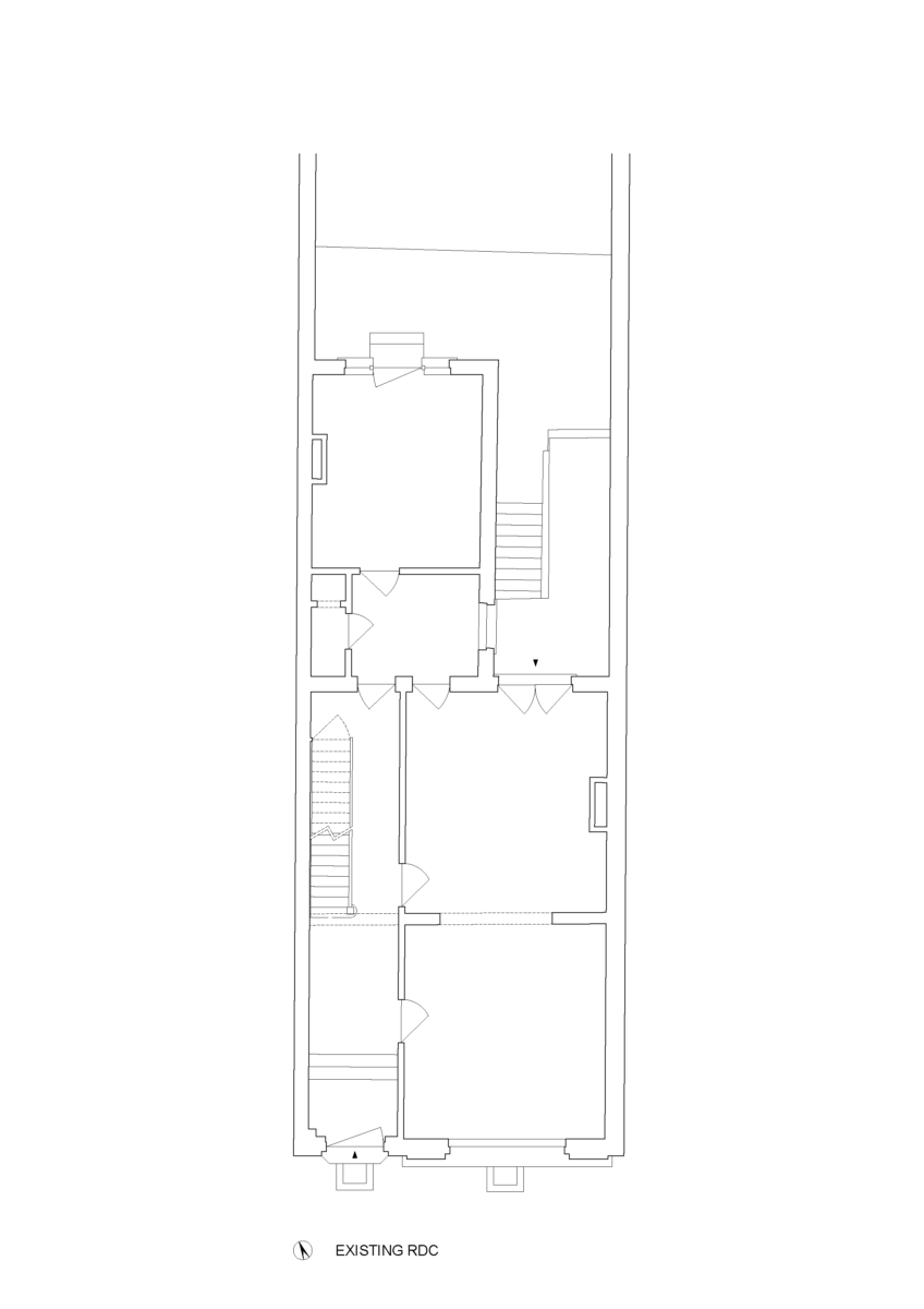
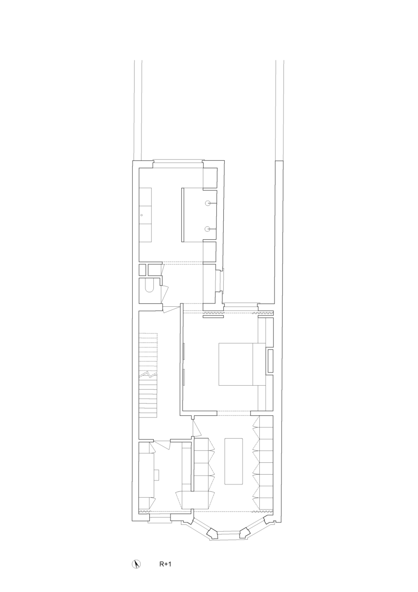
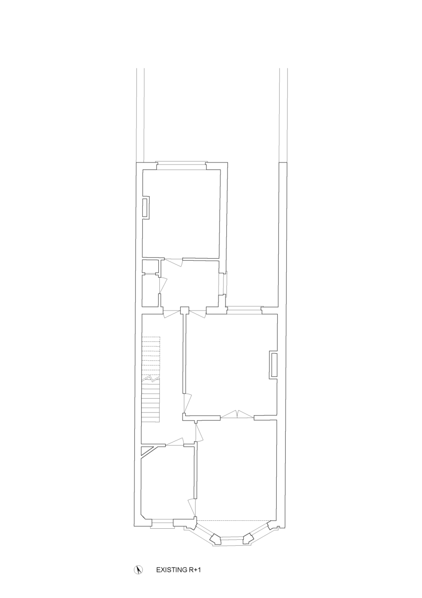
We thought of the house as a visual promenade from the ground floor to the second floor, providing a universe to each level. As soon as we enter, we find ourselves immersed in a pink box with its sunny shades like a salty come back from the beach-end of day.
We thought of the house as a visual promenade from the ground floor to the second floor, providing a universe to each level. As soon as we enter, we find ourselves immersed in a pink box with its sunny shades like a salty come back from the beach-end of day.
For the sake of consistency in relation to the strong purpose of materials and colors, for the furniture we choose, there is a clear reference to brutalist furniture in the whole house, except for the living room in the ground floor which is more related to the seventies.
For the other lighting throughout the house, there was a reflexion given to all the lamps for a sake
of uniformity: they are signed Hans Agne Jakobsson. To compensate for the brutalism of the chosen furniture, some pieces of furniture such as Mario Bellini’s Amanta sofa or Vico Magistretti’s Caori Coffee table provide a seventies feeling to the space with a more mannered side.
of uniformity: they are signed Hans Agne Jakobsson. To compensate for the brutalism of the chosen furniture, some pieces of furniture such as Mario Bellini’s Amanta sofa or Vico Magistretti’s Caori Coffee table provide a seventies feeling to the space with a more mannered side.
Zoom
Zoom
Zoom
Zoom
Zoom
Zoom